2015的5月,我們開始計劃著,應該要幫 niizo 手作找一個新的家,尋尋覓覓找了不少店面,第一眼看到現在的工作室就被它明亮舒服的空間給深深吸引了。
這個位於四樓的空間,居然規劃有一大片的草皮,真是有種世外桃源的感覺,工作室外頭還有蠻寬敞的走廊,對於需要帶著小孩來工作的我們來說,有個安全又可以跑跳的戶外空間,真的相當有幫助。

看完現場後,計算一下地上石英磚的數量,zou回家就立馬畫起平面圖了,想要先確認空間的實用性如何?大概花了二個晚上的時間,就大至抵定主要的空間配置了。等到覺得這空間是好用的才開始認真思考與前房東解約、搬家和新工作室的簽約。
上圖的左邊是電燈開關配置的規劃,主要分成軌道燈及吊燈兩種光源,Zou會用顏色標示,同一個開關的燈光同一個顏色表示。
上課主要用的大工作桌的照明規劃,zou陸續把一些想法先畫下來。
門面的設計
因為預算很有限,所以一開始我們就有共識,把門面做為這次裝潢最重要的部份,將主要的預算跟細節花在門面上,因此,接下來的設計也花了最多的時間,陸續改了好幾個版本。然後我們花了N個晚上還有N個週末再討論,沒有任何的娛樂生活啊。
因為我們不是空間設計師,沒有太多實務經驗,平時走在路上,就得一直研究別人家的門面比例、材質和用色等,有時會呆看很久、左看看右看看、東比西比,還拍個照做記錄,有幾次店員還走出來說:「有事嗎?」
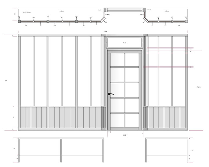
用 illustrator繪製的門面設計圖,zou在尺寸上都用1:100的比例去繪製,例如1公尺的物件,在以拉內則設定為1公分,除了可以有精確的尺寸外,完稿尺寸不會太大,轉圖檔和列印都會方便一些。
因為我們不是專業的空間設計師,沒有任何的經驗,根本抓不到想像的東西真的做出來會變成什麼樣子,zou後來用了一個很得意的方法,不用3D軟體就能做出逼真的效果,方法是用Photoshop來模擬,讓腦中的想像可以多再具體一些。就跟當初我們在構思新家,zou也是用一樣的方式來跟我溝通,等完工後再看,跟當初模擬圖真的差不多耶,好厲害。
首先,先拍一張適合合成的空景圖
利用這張空景圖的透視線為基礎參考,就可以很輕易的把一些材質合成上去,而不會怪怪的,想要什麼風格的木地板,上網很容易找到。以前我喜歡淡色的地板,現在可能是年紀的關係,居然喜歡起有點舊舊的地板了。
牆面的顏色也可以直接在這裡做色彩的計劃,馬上就可以看到模擬出的效果,真的很方便。
一看到zou掛上三角旗,我就說,我又沒有要掛三角旗,馬上引來白眼,「那不是重點,看感覺好嗎?」
把在以拉畫好的門面設計線稿貼進PS裡,再利用圖片的透視參考就可以很快的拉出正確的透視效果,接著還可以幫門片合成上材質及色彩,要深色或淺色的木紋,馬上就可以很具體的呈現出來。
最後再放上一些盆栽和佈置,增加更真實的氣氛。哇,美呆了。
這時會非常期待真的做好的樣子!
最後合成的結果,除了可以更確定心中的想法外,我也拿這張圖先給木工師傅看,對於溝通有不少的幫助,他們會更有概念抓到我們要的感覺。
登登!最後完工的結果,是不是跟模擬的很像呢?
車縫區的牆面設計
車縫區上面的洞洞板牆面設計,是zou跟設計師朋友討論時,設計師建議的,聽了之後,我眼睛為之一亮,那不就是工作室一定要有的元素嗎?老公,可以給我一大面嗎?哈哈哈哈。
zou當下通常不會很肯定地說這樣好或那樣不好,他就是實際的回家用電腦模擬看看,只要有些沒有把握的部份,zou就會採用這個方法。
天花板設計
進門口處上方的天花板處理,原本一開始打算做天花板將兩個樑中間封起來,但Zou一直覺得不希望在這裡做太多的裝潢,一直在想怎麼做是最省又效果好的方案,木工都進場後,Zou還一直在工室比呀比量呀量的,後來才想到一個不錯的方案,馬上回家做模擬圖,幾經調整後,覺得只做門面延伸一小段把鐵捲門箱體包起來即可,其餘的部份噴黑加掛吊燈反而更有型和省錢。








2016/06/25 at 10:13 下午
請問除了工作室還有什麼地方可以上到你的課嗎
2016/07/18 at 8:00 下午
您好,每年的四月和十月我在泰山市民大學也會上課喔,我會po在我的粉絲團頁面提醒大家報名。https://www.facebook.com/niencraft/
2015/10/07 at 2:38 下午
好棒喔! 詳盡解說,學了好多…謝謝!
2015/10/07 at 10:46 下午
那就太棒了,總算是不枉費我打這麼多字呀!
2015/09/15 at 2:01 下午
真好! 老師依然在手作教學上持續地往前邁進, 好棒!!
好久不見, 祝福老師的工作室越來越好!
2015/09/27 at 10:52 上午
感謝妳的鼓勵呀,有空再回來玩喔
2015/09/08 at 1:51 下午
看到老師ㄧ步步地前進,真的太棒了。雖然我們搬回台北市,還是會常上網看看老師有沒有新的作品,想著何時回去上課,老師,後會有期^^
2015/09/14 at 8:51 上午
淑梅,好久不見了,原來是搬家了,有空還是可以來三峽玩,順道來找我喔,呵呵。保重喔。
2015/09/08 at 8:45 上午
我也住北大特區 想去上課 請問這是哪個社區?
2015/09/08 at 9:01 上午
您好~這在國際一街的北大商場,這裡有詳細介紹/sewingclass/location/,若要上課,在麻煩您預約喔,給您課表參考/sewingclass/,謝謝。
2015/09/08 at 4:11 上午
好棒喔,看著你的清晰講解,有種融入設計中的過程
2015/09/08 at 9:02 上午
謝謝您~